Quadrilocale in vendita

Zola Predosa, Via Predosa
€ 320.000
4 locali 4 locali
113 Mq 113 Mq
1 bagno 1 bagno

Quadrilocale in vendita

Zola Predosa, Via Predosa

Descrizione annuncio

ZOLA PREDOSA: Ai piedi della collina, in zona verde e tranquilla ma al contempo comoda al centro del Paese, proponiamo appartamento al terzo e ultimo piano con ascensore all'interno di un'elegante palazzina in pietra a vista.

L'immobile esposto su tre lati gode di un'ottima luminosità e offre spazi ben distribuiti e funzionali.

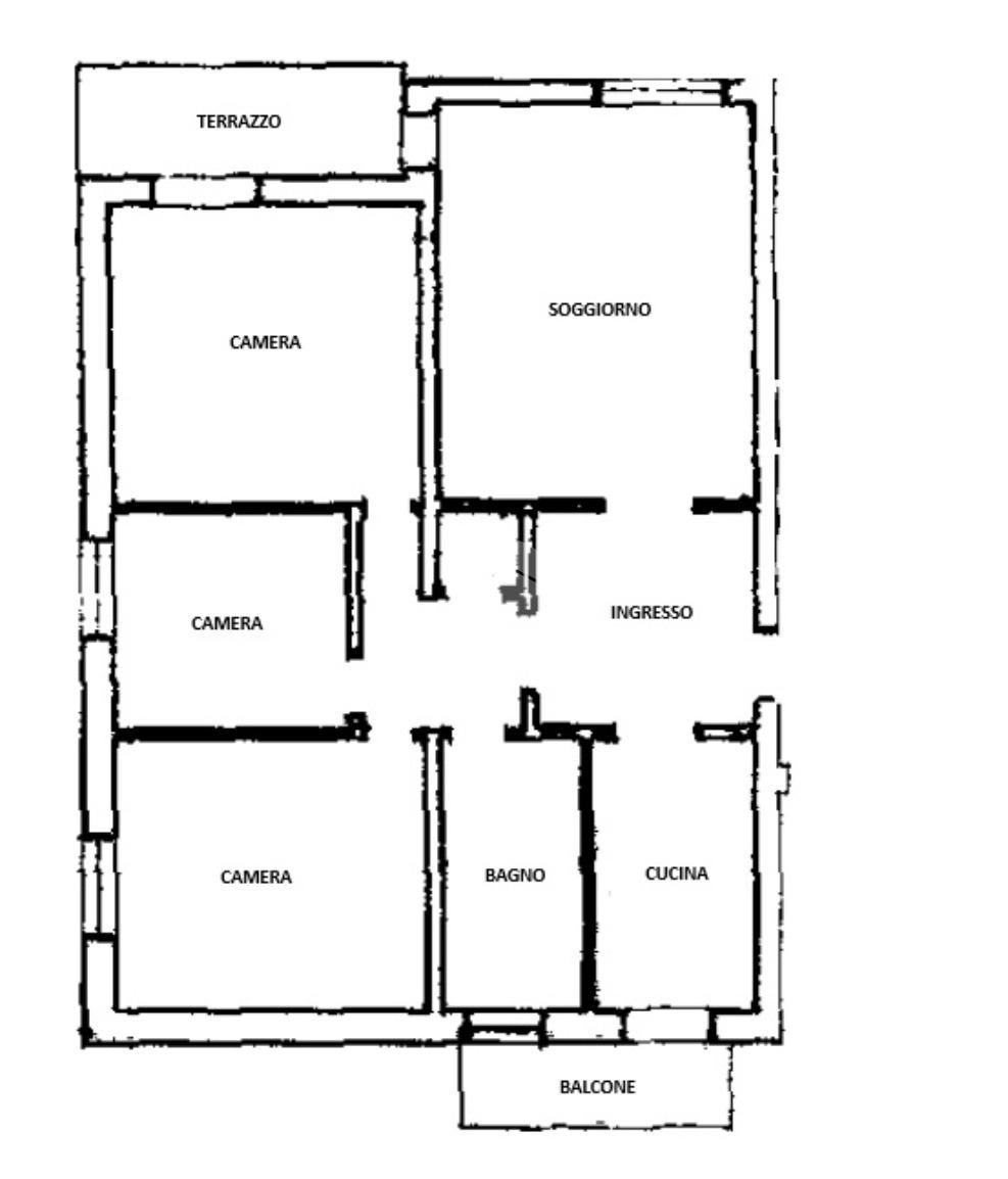
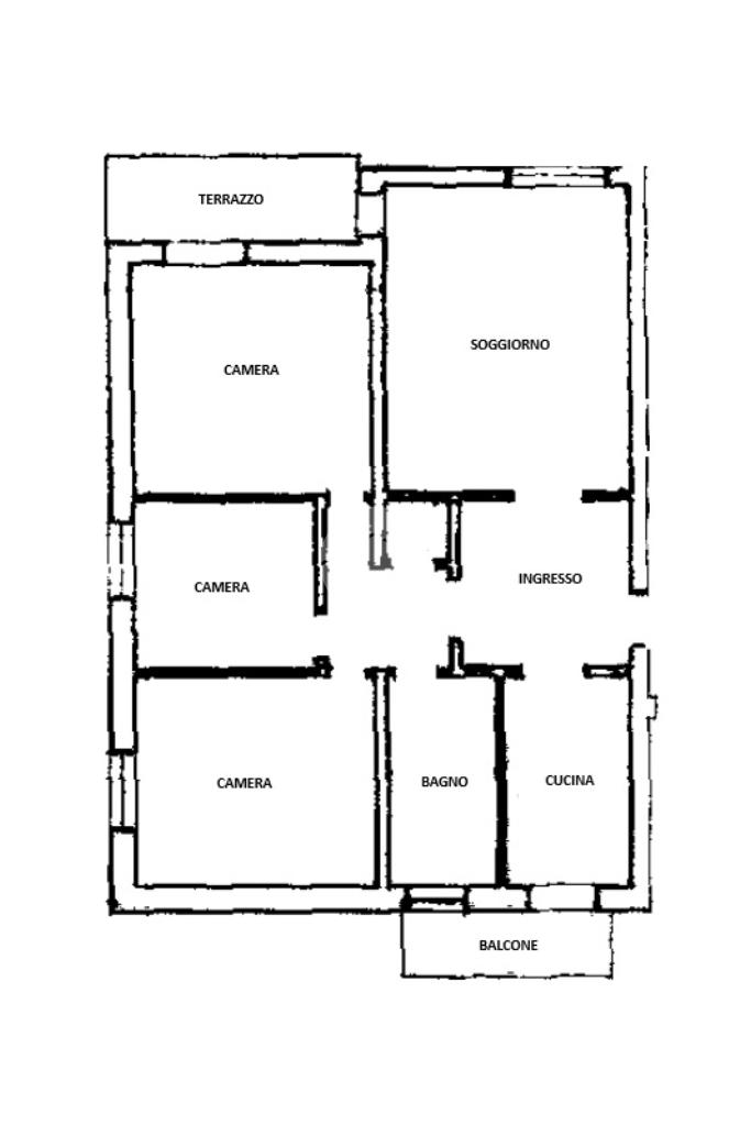
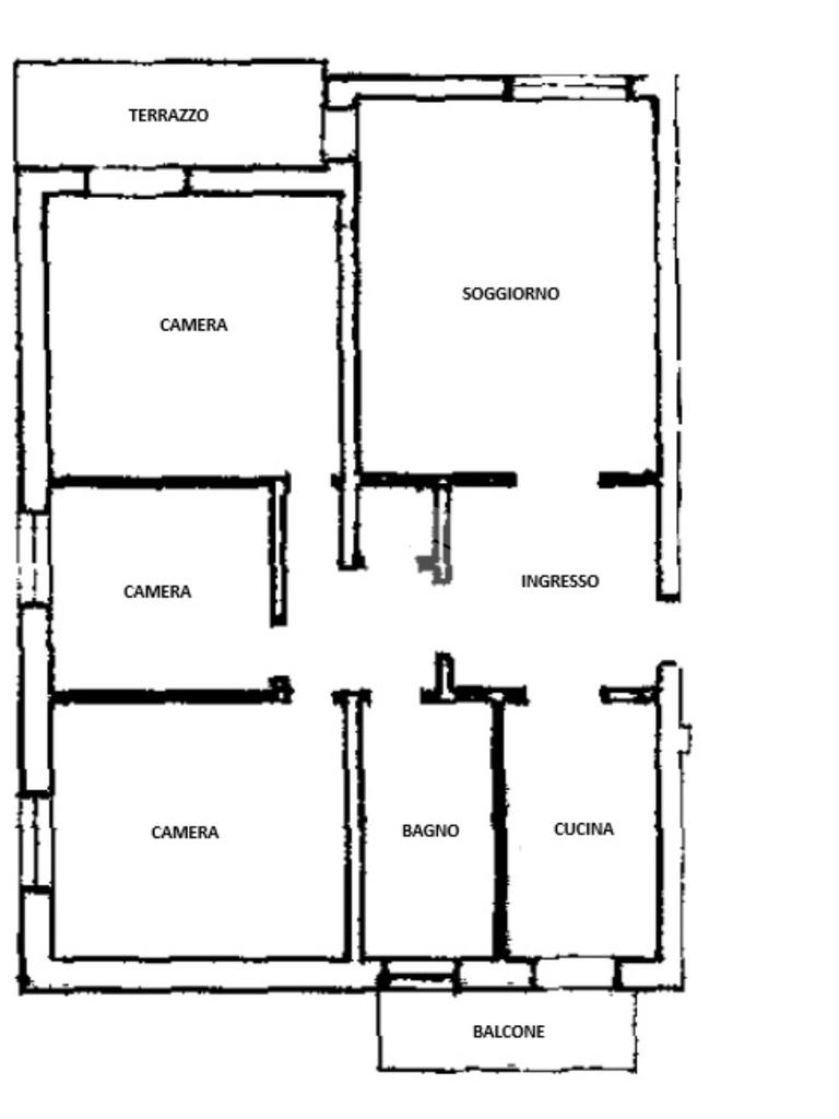
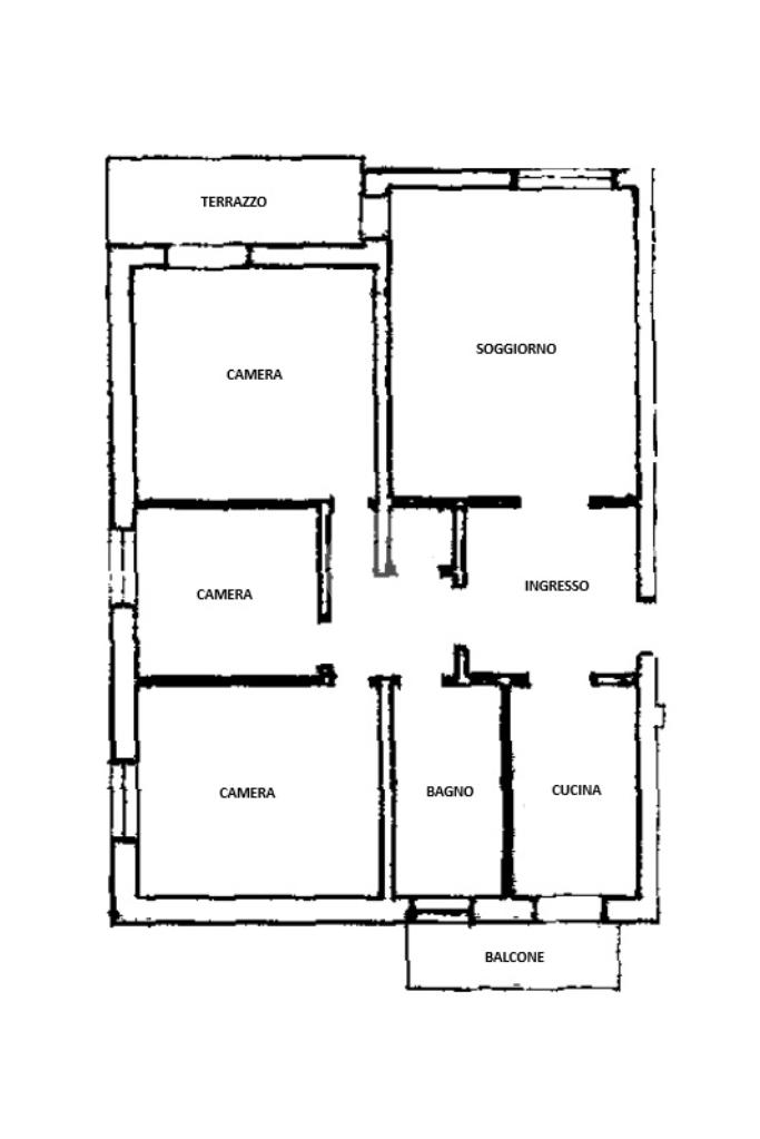
Ingresso arredabile, soggiorno dal quale si accede al terrazzo, cucina con accesso a un secondo terrazzo, disimpegno zona notte, tre camere, bagno e ripostiglio. Completa la proprietà un'autorimessa con annessa cantina.

La posizione strategica, che consente di raggiungere facilmente i principali servizi e le vie di comunicazione che collegano a Bologna, la disposizione funzionale degli ambienti interni, la luminosità garantita dall'ottima esposizione degli affacci, la facilità di parcheggio grazie ai diversi posti auto nel cortile condominiale sono solo alcune delle qualità principali della soluzione.

Per ulteriori informazioni e dettagli siamo disponibili dalle 09:00 alle 13:00 e dalle 15:00 alle 20:00 presso la nostra sede in Via Roma n°5 Zola Predosa. Per fissare una visita all'immobile ci contatti allo 051/750399.

Mostra tutto

Nelle vicinanze

Trasporto pubblico Trasporto pubblico
Zola Centro
Zola Centro
590 m
Zola Chiesa
Zola Chiesa
920 m
Lavino Di Sopra
Lavino Di Sopra
460 m
Zola Predosa Chiesa
Zola Predosa Chiesa
580 m
Pilastrino
Pilastrino
1,1 Km
Ricariche auto elettriche Ricariche auto elettriche
Municipio di Zola Predosa BO
560 m
EnelX Fast IKEA Bologna
2,7 Km
Scuole Scuole
Scuola media Francesco Francia
220 m
Scuole
1,5 Km
Farmacia Farmacia
Faemacia Legnani
660 m
Supermercati Supermercati
Coop
770 m
Supermercato Dimeglio
840 m
iN's Mercato
970 m
DPiù
2,0 Km
Carrefour
2,6 Km
Negozi Negozi
Alcott
2,5 Km
Calzedonia
2,5 Km
Chemise
2,6 Km
Disponibile
2,6 Km
Golden Point
2,6 Km
Bar Bar
Bar
250 m
Stefy
1,1 Km
B+ Cafè
1,8 Km
Gideon
2,3 Km
Bar Sport
2,5 Km
Ristoranti Ristoranti
Accademia der Cacio e Pepe
200 m
La Mandria
540 m
Ristoranti
740 m
LA FORCHETTA CURIOSA
750 m
Masetti
1,2 Km
Mostra tutto

Caratteristiche

Rif.:
61199023
Piano:
3 di 3 con ascensore (ultimo Piano)
Box:
1
Balconi:
2
Terrazzi:
2
Camere da letto:
3
Mostra tutto
Prezzo Prezzo
€ 320.000
Rata mutuo Rata mutuo
€ 1.520 / mese
Spese annue Spese annue
€ 2.200
Proponi il tuo prezzoProponi il tuo prezzo

Classe Energetica

F
F
F
F
F
F
F
F
F
EP globale non rinnovabile:
229.70 kW h/m² anno
EP globale rinnovabile:
3.83 kW h/m² anno
EP invernale del fabbricato:
EP estiva del fabbricato:
Anno di costruzione:
1970
Riscaldamento:
Centralizzato
Tipo impianto:
Ad aria
Tipo alimentazione:
Metano

Ti interessa visionare l'immobile?

Fissa un appuntamento  Fissa un appuntamento

Richiedi informazioni

Clicca su Leggi per aprire l'informativa
* Questi campi sono obbligatori

Calcola il tuo mutuo

Semplice e senza impegno
Anticipo

( % )
Mutuo

( % )

pochi semplici passi

inserisci i tuoi dati
Questionario completato
Grazie per aver richiesto un appuntamento senza impegno con un nostro Consulente del Credito e Assicurativo.

Hai inserito correttamente tutti i dati necessari e a breve riceverai una e-mail con un link da convalidare per inviare i tuoi dati.
Affiliato
C.V. Srl
Via Roma, 5 40069 Zola Predosa (BO)

Il nostro staff


  • Gian Marco Italia
    Affiliato

  • Simone De Filippo
    Collaboratore

  • Eugenio Elmar
    Collaboratore

  • Emanuil Naydenov Emilov
    Collaboratore

  • Gabriele Matarazzo
    Collaboratore
Via Roma, 5 40069 Zola Predosa (BO)
Zona: Zola Predosa-Riale-Ponte Ronca-San Martino in Casola
Mostra su mappa
Orari: dal lunedì al venerdì dalle 9 alle 13 e dalle 15 alle 20.Il sabato dalle 9 alle 13 e dalle 15 alle 17.
Affiliato
C.V. Srl
Via Roma, 5 40069 Zola Predosa (BO)

2026 Tecnocasa Franchising S.p.A. - P. IVA 08365160152 - Via Monte Bianco 60/A 20089 Rozzano (MI). Ogni agenzia ha un proprio titolare ed è autonoma. Privacy policy | Policy utilizzo | Cookie policy