6 locali in vendita

Zola Predosa, Via Madonna Dei Prati - Madonna Prati
€ 379.000
6 locali 6 locali
201 Mq 201 Mq
2 bagni 2 bagni

6 locali in vendita

Zola Predosa, Via Madonna Dei Prati - Madonna Prati

Descrizione annuncio

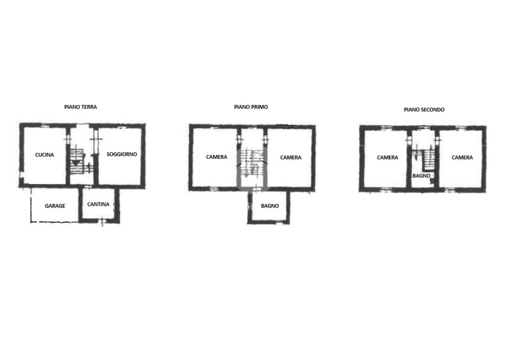
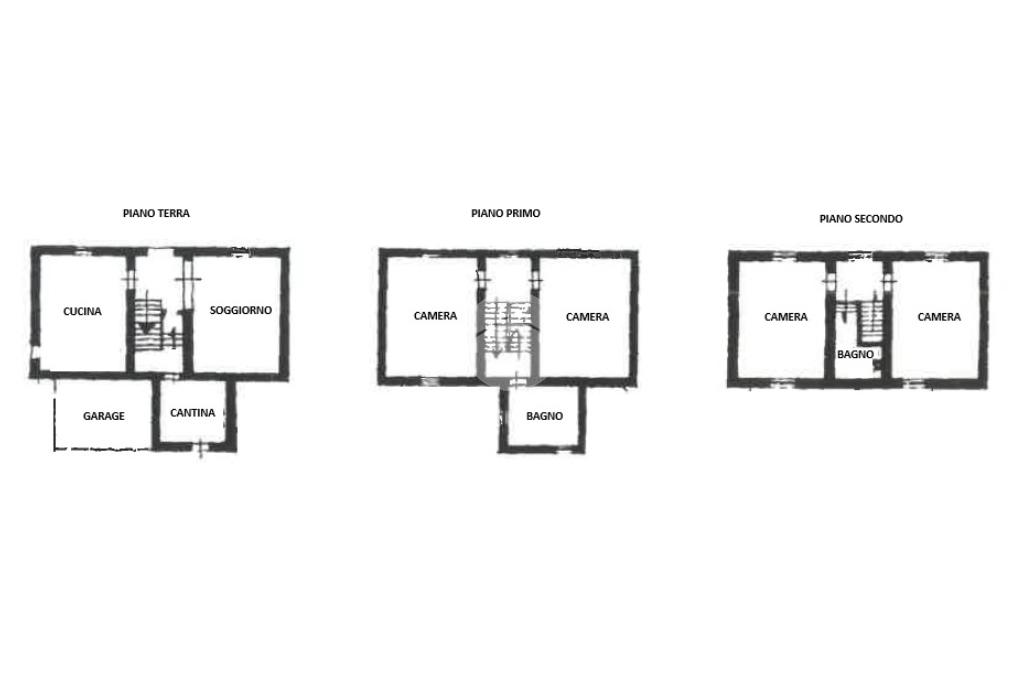
PONTE RONCA: A Madonna Prati, in zona tranquilla proponiamo soluzione di testa con ingresso indipendente e giardino privato.

L'immobile si sviluppa su tre livelli: al piano terra dall'atrio di ingresso si raggiunge il soggiorno e la cucina abitabile con accesso al giardino privato, al piano ammezzato troviamo il bagno; al primo piano due camere matrimoniali e infine al secondo piano altre due camere matrimoniali e il secondo bagno.

L'immobile è dotato di un'autorimessa/deposito e di un posto auto all'interno del giardino privato.

Per ulteriori informazioni e dettagli siamo disponibili dalle 09:00 alle 13:00 e dalle 15:00 alle 20:00 presso la nostra sede in Via Roma n°5 Zola Predosa. Per fissare una visita all'immobile ci contatti allo 051/750399.

Mostra tutto

Nelle vicinanze

Trasporto pubblico Trasporto pubblico
Ponte Ronca
Ponte Ronca
2,6 Km
Anzola E. Magli
Anzola E. Magli
1,9 Km
Lavino Di M. Amendola
Lavino Di M. Amendola
1,9 Km
Scuole Scuole
Scuole
2,4 Km
Scuola Elementare
2,4 Km
Scuola Media Giovanni Pascoli
2,8 Km
Farmacia Farmacia
Lavino di Mezzo
2,5 Km
Barbolini
2,5 Km
Comunale
2,8 Km
Supermercati Supermercati
Conad
2,2 Km
COOP Anzola
3,0 Km
Negozi Negozi
DICO
2,3 Km
Fashion Outlet
2,3 Km
Panificio Giusti
2,7 Km
Jader Jeans
2,9 Km
Bar Bar
Bar
1,9 Km
Il Cremino
2,3 Km
Fred & Steve
3,0 Km
Ristoranti Ristoranti
Ristoranti
1,0 Km
"Il Pescatore"
1,9 Km
Ballarini
2,5 Km
Il Brigante
2,8 Km
Do Re Mi
2,9 Km
Mostra tutto

Caratteristiche

Rif.:
61161996
Piano:
3 di 3 (Piano su più livelli)
Box:
1
Posti auto:
1
Camere da letto:
4
Arredamento:
Assente
Mostra tutto
Prezzo Prezzo
€ 379.000
Rata mutuo Rata mutuo
€ 1.800 / mese
Spese annue Spese annue
€ 0
Proponi il tuo prezzoProponi il tuo prezzo

Classe Energetica

G
G
G
G
G
G
G
G
G
EP globale non rinnovabile:
210.00 kW h/m² anno
EP globale rinnovabile:
10.00 kW h/m² anno
EP invernale del fabbricato:
EP estiva del fabbricato:
Anno di costruzione:
1950
Riscaldamento:
Autonomo
Tipo impianto:
A radiatori
Tipo alimentazione:
Metano

Ti interessa visionare l'immobile?

Fissa un appuntamento  Fissa un appuntamento

Richiedi informazioni

Clicca su Leggi per aprire l'informativa
* Questi campi sono obbligatori

Calcola il tuo mutuo

Semplice e senza impegno
Anticipo

( % )
Mutuo

( % )

pochi semplici passi

inserisci i tuoi dati
Questionario completato
Grazie per aver richiesto un appuntamento senza impegno con un nostro Consulente del Credito e Assicurativo.

Hai inserito correttamente tutti i dati necessari e a breve riceverai una e-mail con un link da convalidare per inviare i tuoi dati.
Affiliato
C.V. Srl
Via Roma, 5 40069 Zola Predosa (BO)

Il nostro staff


  • Gian Marco Italia
    Affiliato

  • Simone De Filippo
    Collaboratore

  • Eugenio Elmar
    Collaboratore

  • Emanuil Naydenov Emilov
    Collaboratore

  • Gabriele Matarazzo
    Collaboratore
Via Roma, 5 40069 Zola Predosa (BO)
Zona: Zola Predosa-Riale-Ponte Ronca-San Martino in Casola
Mostra su mappa
Orari: dal lunedì al venerdì dalle 9 alle 13 e dalle 15 alle 20.Il sabato dalle 9 alle 13 e dalle 15 alle 17.
Affiliato
C.V. Srl
Via Roma, 5 40069 Zola Predosa (BO)

2026 Tecnocasa Franchising S.p.A. - P. IVA 08365160152 - Via Monte Bianco 60/A 20089 Rozzano (MI). Ogni agenzia ha un proprio titolare ed è autonoma. Privacy policy | Policy utilizzo | Cookie policy