5 locali in vendita

Zola Predosa, Via Cavalcanti
€ 365.000
5 locali 5 locali
115 Mq 115 Mq
2 bagni 2 bagni

5 locali in vendita

Zola Predosa, Via Cavalcanti

Descrizione annuncio

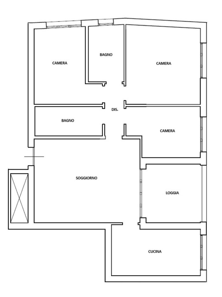
ZOLA PREDOSA: In recente ed elegante contesto residenziale, circondato dal verde ma al contempo comodo al Paese, proponiamo appartamento in palazzina in pietra a vista al primo piano servito da ascensore e senza barriere architettoniche.

Ingresso sul soggiorno dal quale si accede al terrazzo loggiato, cucina abitabile, disimpegno zona notte, tre camere e due bagni. Al piano interrato possibilità di autorimessa doppia (€25.000,00). Infine l'immobile è dotato di un posto auto assegnato.

Il riscaldamento è alimentato da caldaia autonoma e le spese di gestione condominiale risultano contenute.

Per ulteriori informazioni e dettagli siamo disponibili dalle 09:00 alle 13:00 e dalle 15:00 alle 20:00 presso la nostra sede in Via Roma n°5 Zola Predosa. Per fissare una visita all'immobile ci contatti allo 051/750399.

Mostra tutto

Nelle vicinanze

Trasporto pubblico Trasporto pubblico
Zola Centro
Zola Centro
1,6 Km
Zola Chiesa
Zola Chiesa
2,0 Km
Gesso Chiesa
Gesso Chiesa
70 m
Gesso Finelli
Gesso Finelli
280 m
Pilastrino
Pilastrino
1,1 Km
Ricariche auto elettriche Ricariche auto elettriche
Municipio di Zola Predosa BO
1,5 Km
EnelX Fast IKEA Bologna
2,3 Km
Schiavina S.R.L. | EnelX
2,6 Km
Scuole Scuole
Scuole
910 m
Scuola media Francesco Francia
1,3 Km
Farmacia Farmacia
Faemacia Legnani
1,2 Km
Ceretolo
2,6 Km
Farmacia di Monte San Pietro
2,7 Km
Supermercati Supermercati
iN's Mercato
1,1 Km
DPiù
1,5 Km
Coop
1,9 Km
Supermercato Dimeglio
2,0 Km
Carrefour
2,2 Km
Negozi Negozi
Alcott
2,1 Km
Chemise
2,1 Km
Caporiccio
2,1 Km
Disponibile
2,2 Km
Calzedonia
2,2 Km
Bar Bar
Stefy
60 m
Bar
900 m
B+ Cafè
1,7 Km
Gideon
1,7 Km
Illy
2,1 Km
Ristoranti Ristoranti
Masetti
70 m
LA FORCHETTA CURIOSA
1,1 Km
Baita Mamma Rina
1,1 Km
Parco Dei Ciliegi
1,1 Km
Accademia der Cacio e Pepe
1,2 Km
Mostra tutto

Caratteristiche

Rif.:
61150106
Piano:
1 di 3 con ascensore (Piano basso)
Box:
1
Posti auto:
1
Terrazzi:
1
Camere da letto:
3
Mostra tutto
Prezzo Prezzo
€ 365.000
Rata mutuo Rata mutuo
€ 1.723 / mese
Spese annue Spese annue
€ 1.000
Proponi il tuo prezzoProponi il tuo prezzo

Classe Energetica

C
C
C
C
C
C
C
C
C
EP globale non rinnovabile:
106.01 kW h/m² anno
EP globale rinnovabile:
4.95 kW h/m² anno
EP invernale del fabbricato:
EP estiva del fabbricato:
Anno di costruzione:
2003
Riscaldamento:
Autonomo
Tipo impianto:
A radiatori
Tipo alimentazione:
Metano

Ti interessa visionare l'immobile?

Fissa un appuntamento  Fissa un appuntamento

Richiedi informazioni

Clicca su Leggi per aprire l'informativa
* Questi campi sono obbligatori

Calcola il tuo mutuo

Semplice e senza impegno
Anticipo

( % )
Mutuo

( % )

pochi semplici passi

inserisci i tuoi dati
Questionario completato
Grazie per aver richiesto un appuntamento senza impegno con un nostro Consulente del Credito e Assicurativo.

Hai inserito correttamente tutti i dati necessari e a breve riceverai una e-mail con un link da convalidare per inviare i tuoi dati.
Affiliato
C.V. Srl
Via Roma, 5 40069 Zola Predosa (BO)

Il nostro staff


  • Gian Marco Italia
    Affiliato

  • Simone De Filippo
    Collaboratore

  • Eugenio Elmar
    Collaboratore

  • Emanuil Naydenov Emilov
    Collaboratore

  • Gabriele Matarazzo
    Collaboratore
Via Roma, 5 40069 Zola Predosa (BO)
Zona: Zola Predosa-Riale-Ponte Ronca-San Martino in Casola
Mostra su mappa
Orari: dal lunedì al venerdì dalle 9 alle 13 e dalle 15 alle 20.Il sabato dalle 9 alle 13 e dalle 15 alle 17.
Affiliato
C.V. Srl
Via Roma, 5 40069 Zola Predosa (BO)

2025 Tecnocasa Franchising S.p.A. - P. IVA 08365160152 - Via Monte Bianco 60/A 20089 Rozzano (MI). Ogni agenzia ha un proprio titolare ed è autonoma. Privacy policy | Policy utilizzo | Cookie policy